Informace
Světlé kanceláře, blízko centra
Možnost si prostor upravit
Dobrá dostupnost autem i MHD
Celé patro
Variabilita místností
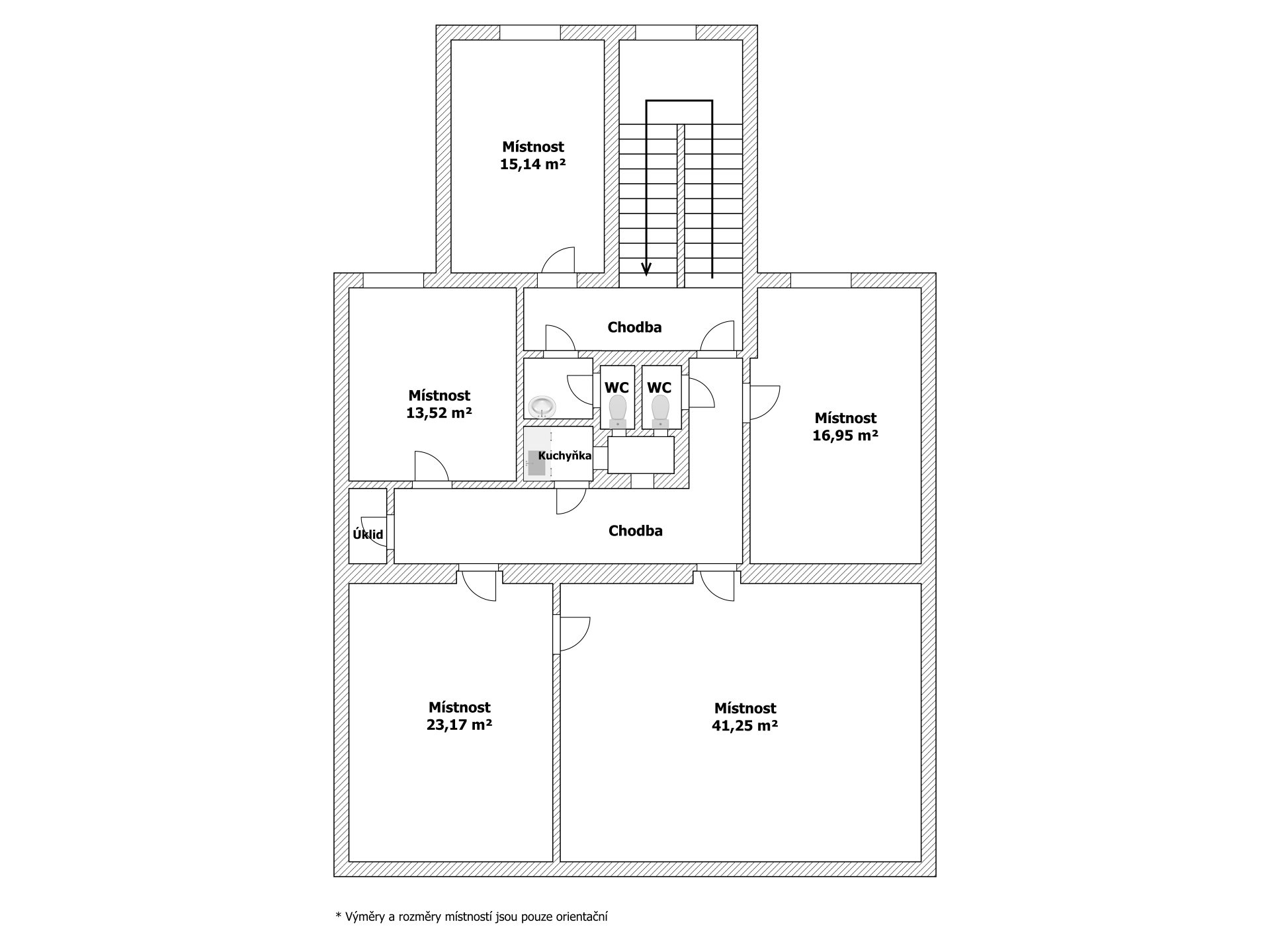
Atraktivní kancelářské prostory o celkové rozloze 131,6 m2 jsou ihned k dispozici, k dlouhodobému pronájmu. Hledáte kanceláře, projekční ateliér, školící centrum?
Poskytujete finanční služby, právní služby nebo jste začínající start – up?
Potom tyto kanceláře ve 3. patře, mohou být to pravé pro Vás. 🙂
Technické detaily
Rozměry a vybavení
5 samostatných místností
Za vstupními dveřmi z hlavní chodby se nachází dvě samostatné místnosti o velikosti 16,95 m2 a 13,52 m2. Dále tu jsou dvě velmi světlé na sebe navazující místnosti, velké 41,25 m2 a 23,17 m2.
Součástí je menší kuchyňka, úklidová místnost a toaleta.
Z hlavní chodby je vstup do další kanceláře o velikosti 15,14 m2 a druhou toaletu.
Místnosti jsou vybaveny zátěžovým kobercem a vertikálními žaluziemi na oknech.
Lze dále dovybavit dalšími stoly a skříněmi. ( v současnosti jsou v kancelářích 3 stoly)
Okna jsou orientována na Husovu ulici a do vnitrobloku.
V domě je široké schodiště a není výtah.
Galerie
